Подобрать проект
Проект одноэтажного дома с гаражом ATUT 3
- Оригинальный |
- Зеркальный
Общая площадь: 135 м
Площадь первого этажа: 103,28 м
Площадь котельной: 3,8 м
Площадь гаража: 32 м
Материал стен:
Материал перекрытий: Плиты перекрытия
Материал кровли:
Площадь кровли: 280 м
Тип кровли: 280 м2
Угол кровли (град.): 30
Высота в коньке: 6.60 м
Тип отопления:
Площадь застройки: 176.00 м
Размеры участка: 22.75 x 25.65 м
Строительный объем: 1168 м
Срок подготовки проекта: 2-3 дня
Строительство: ~ 9 450 000 ₽
Материалы и работы по следующим этапам:
- подготовка участка (снятие плодородного грунта)
- устройство ленточного фундаментов (без коммуникаций)
- возведение стен и перегородок
- устройство перекрытий
- устройство монолитных поясов и перемычек
- монолитная лестница (для 2-х этажных)
- монтаж стропильной системы
- устройство кровли (ЗАБУДОВА, утепление 20 см)
------------------------------------------------
ВНИМАНИЕ! Данная стоимость является ориентировочной и не может расцениваться как коммерческое предложение.
Стоимость проекта:
Одноэтажный проект дома
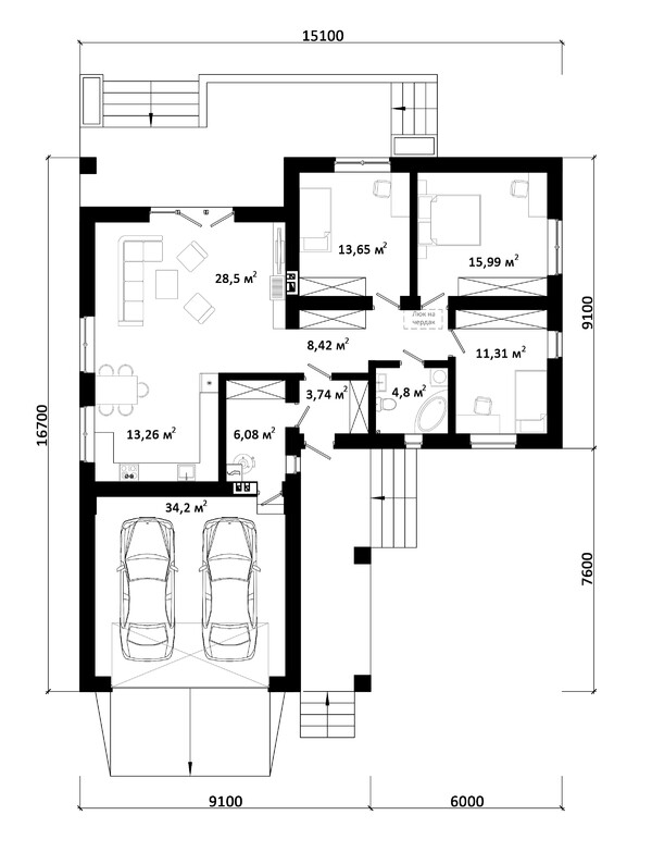
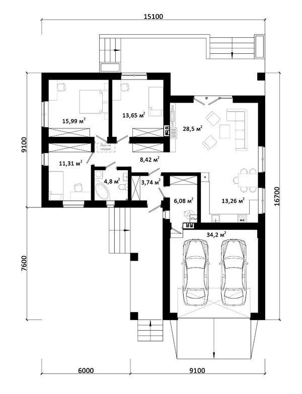
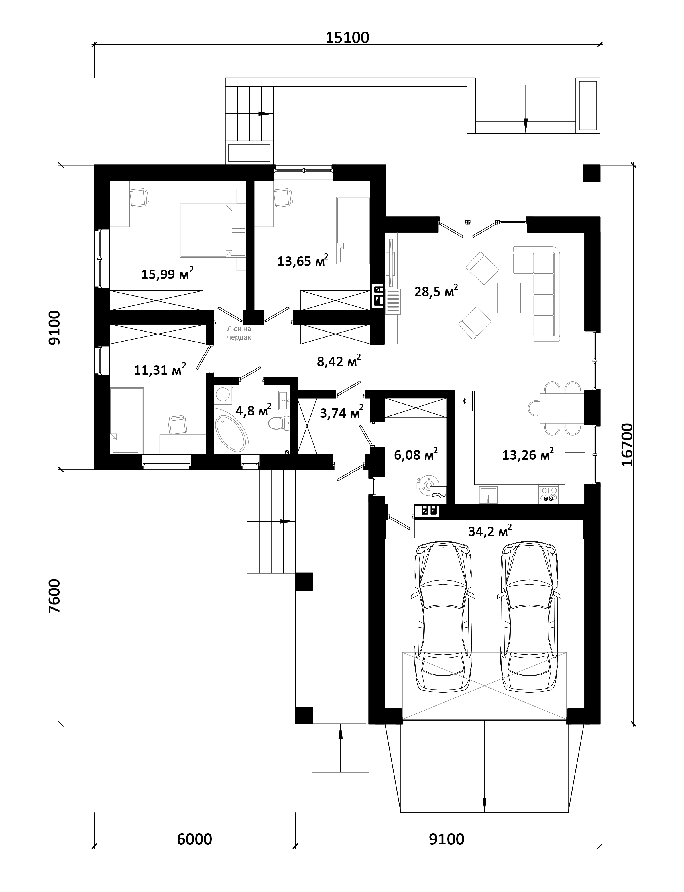
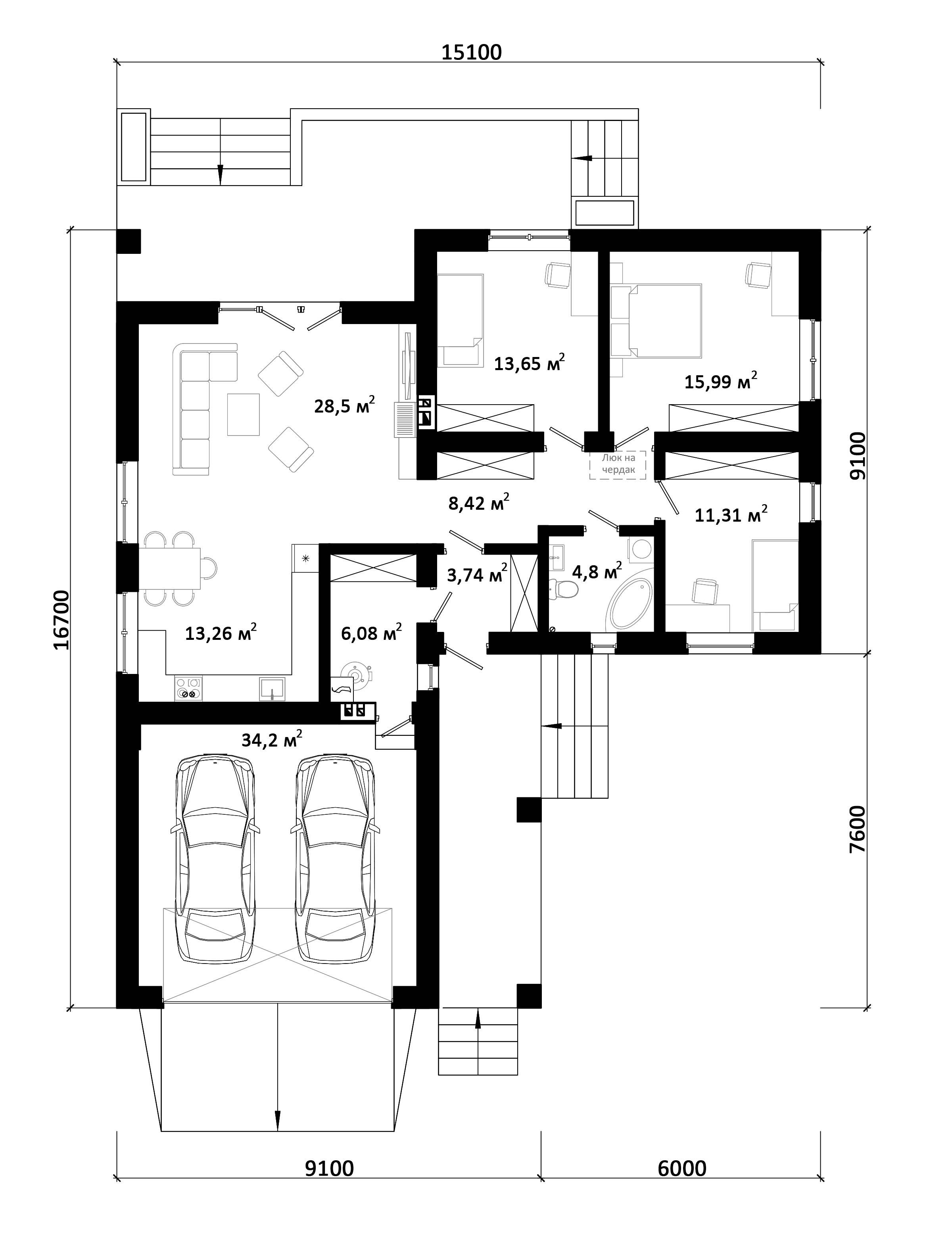
Проект дома Atut 3 является альтернативой известному проекту дома Atut. В отличие от оригинальной версии, этот проект имеет большую площадь и пристроенный гараж. Планировки дома Atut 3 - идеальное предложение для людей со средним достатком.
Здание запроектировано как L-образным корпус, который очень функционален благодаря четкому разделению дома на зоны. Проект относится к категории домов с шатровой кровлей
Дом был спроектирован с учетом наличия отдельно стоящих зданий. Проект включает в себя гараж на две машины, перенесенный на фронтальную часть дома. Это также отличное предложение для людей, которые ищут дом с шатровой крышей, который выглядит современно.
Современный проект дома с гаражом
Проект Atut 3 представляет собой одноэтажный дом, который делает сообщение между комнатами очень комфортным. Внутри дом характеризуется просторной жилой площадью. Он состоит, среди прочего, из функциональной кухни, которую каждый застройщик может легко адаптировать к своим потребностям.
Сторонники практических решений, несомненно, будут рады, что есть также место для кладовой. В гостиной есть атмосферный камин, который дарит приятное тепло и создает в интерьере приятную атмосферу.
В доме есть удобная ванная комната совмещенная с туалетом. Ночная зона состоит из трех спален, поэтому дом подходит для семьи из 2-4 человек.
Пространство также можно использовать как комнату для гостей или офис. Спроектированная за домом терраса является идеальным местом для отдыха.
Технологии строительства дома:
- фундаменты: ленточный, плитный или свайно-ростверковый
- стены: керамзитобетон
- перекрытия: сборные плиты
- кровля: натуральная черепица
- утепление: каменная вата
- источник тепла: газовый котел








Посмотреть желание возникло!
И еще, посмотреть вашу работу под ключ, в районе Колодищ можно?
Скиньте адресок!
Но посмотреть нашу работу «в районе Колодищ» можно, но там будет другой проект двухэтажного дома.
Надо сперва познакомиться, а потом уже вместе с нами поехать на наш объект. А рассылать адреса проживания или строительства наших Клиентов — мы не можем.
Действительно у вас магазин проектов, выбора очень много!
В каждом проекте указываете стоимость строительства. А что входит в стоимость?
Все подробности о стоимости строительства в разделе строительство домов. Изучайте)
В каждом проекте указываете стоимость строительства. А что включает в себя эта стоимость?