Подобрать проект
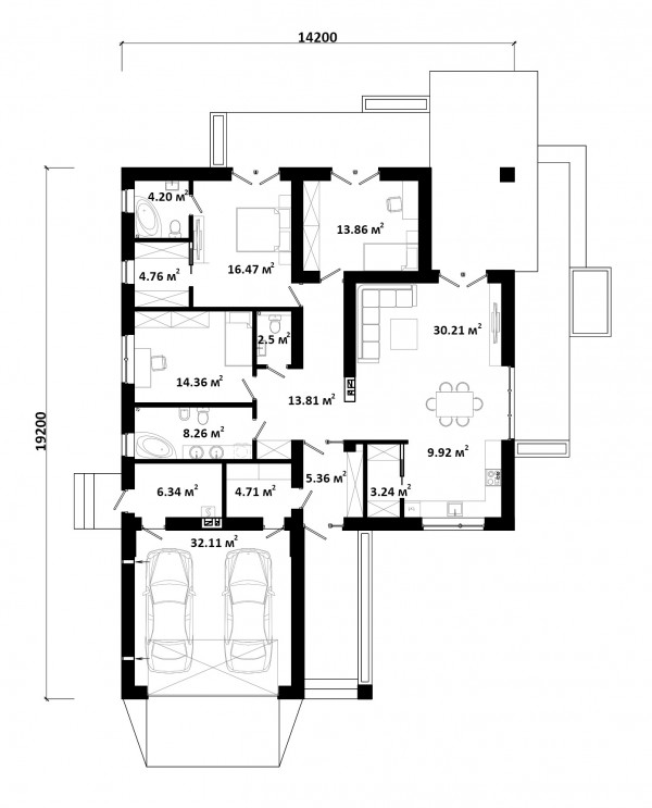
Проект одноэтажного дома с гаражом ARIEL 4
- Оригинальный |
- Зеркальный
Общая площадь: 171 м
Площадь первого этажа: 139 м
Площадь котельной: 5.26 м
Площадь гаража: 32 м
Материал стен:
Материал перекрытий: Плиты
Материал кровли:
Площадь кровли: 345 м
Тип кровли: Шатровая
Угол кровли (град.): 25
Высота в коньке: 7.3 м
Тип отопления:
Площадь застройки: 220.00 м
Размеры участка: 22.14x 28.24 м
Строительный объем: 1050 м
Срок подготовки проекта: 1-2 дня
Строительство: ~ 11 970 000 ₽
Материалы и работы по следующим этапам:
- подготовка участка (снятие плодородного грунта)
- устройство ленточного фундаментов (без коммуникаций)
- возведение стен и перегородок
- устройство перекрытий
- устройство монолитных поясов и перемычек
- монолитная лестница (для 2-х этажных)
- монтаж стропильной системы
- устройство кровли (ЗАБУДОВА, утепление 20 см)
------------------------------------------------
ВНИМАНИЕ! Данная стоимость является ориентировочной и не может расцениваться как коммерческое предложение.
Стоимость проекта:
80000 ₽
ЗАКАЗАТЬ ПРОЕКТ








Комментарии ()