Подобрать проект
Проект одноэтажного дома с гаражом KIWI 2
- Оригинальный |
- Зеркальный
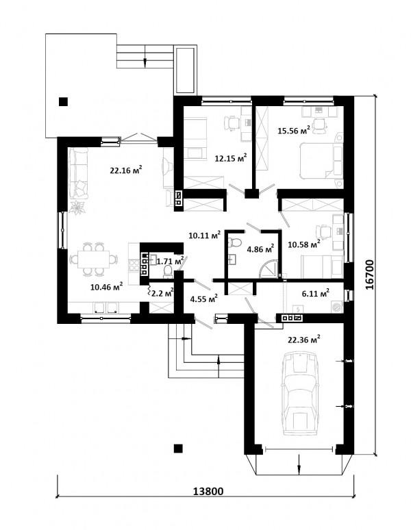
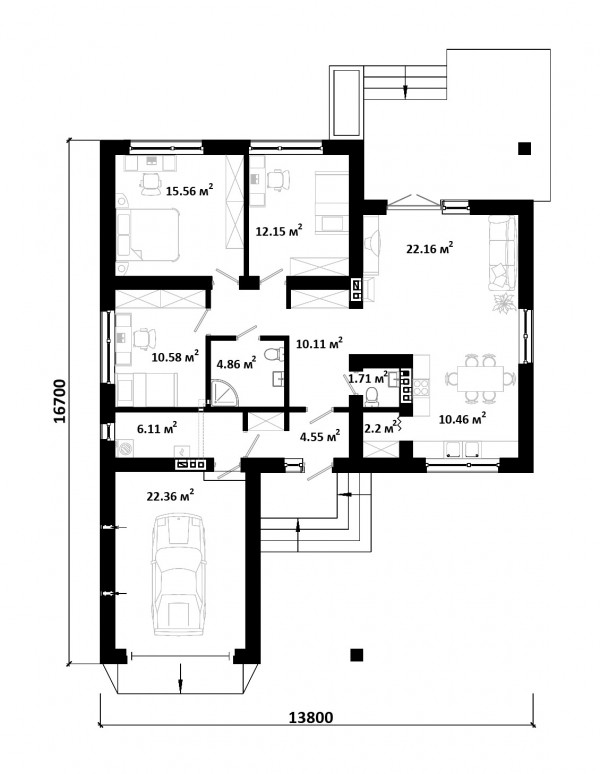
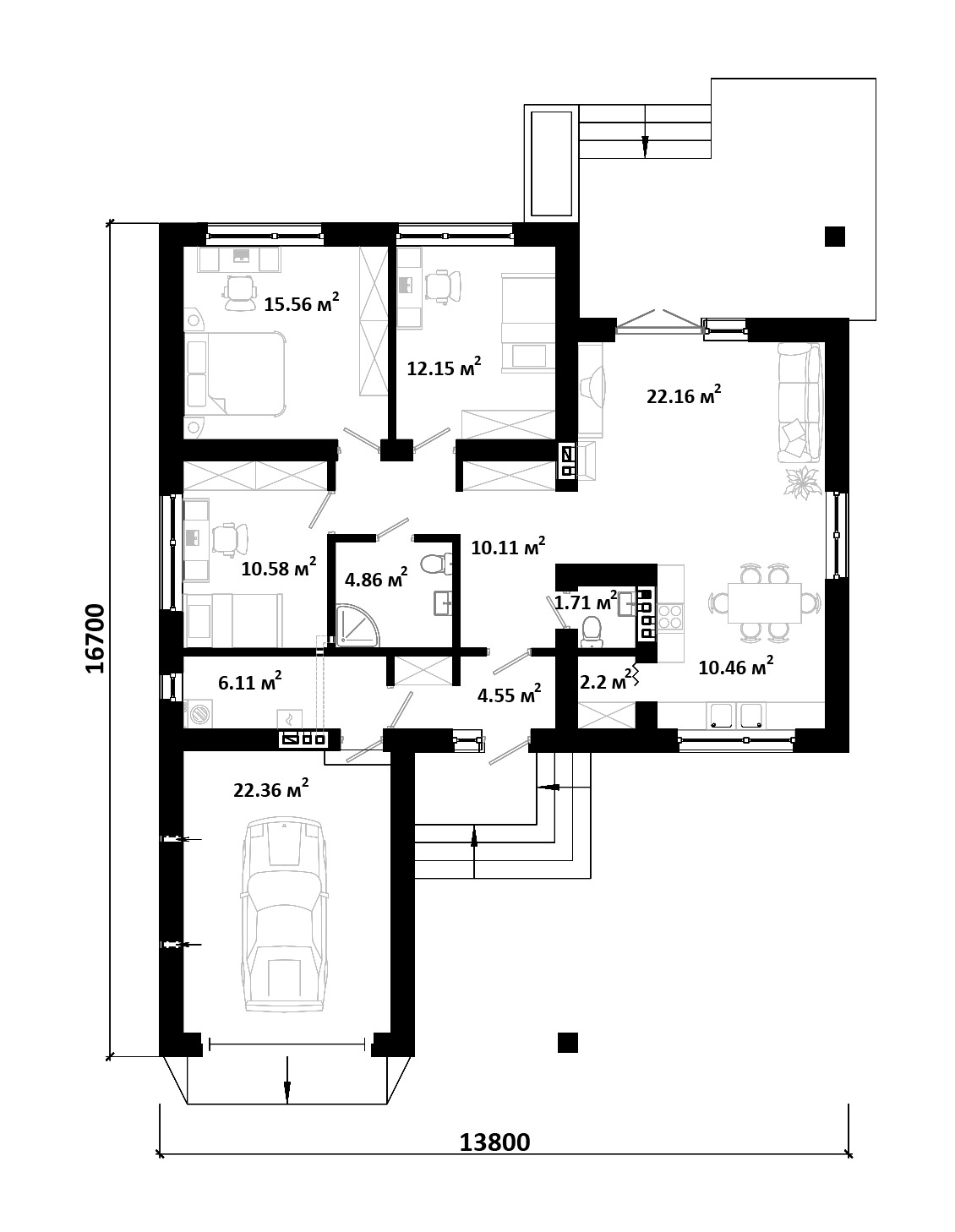
Общая площадь: 122.4 м
Площадь первого этажа: 100 м
Площадь котельной: 6.1 м
Площадь гаража: 22.4 м
Материал стен:
Материал перекрытий: Плиты перекрытия
Материал кровли:
Площадь кровли: 265 м
Тип кровли: Четырёхскатная
Угол кровли (град.): 25
Высота в коньке: 6.80 м
Тип отопления:
Площадь застройки: 155.00 м
Размеры участка: 19.8 х 27,7 м
Строительный объем: 770 м
Срок подготовки проекта: 1-2 дня
Строительство: ~ 8 568 000 ₽
Материалы и работы по следующим этапам:
- подготовка участка (снятие плодородного грунта)
- устройство ленточного фундаментов (без коммуникаций)
- возведение стен и перегородок
- устройство перекрытий
- устройство монолитных поясов и перемычек
- монолитная лестница (для 2-х этажных)
- монтаж стропильной системы
- устройство кровли (ЗАБУДОВА, утепление 20 см)
------------------------------------------------
ВНИМАНИЕ! Данная стоимость является ориентировочной и не может расцениваться как коммерческое предложение.
Стоимость проекта:
80000 ₽
ЗАКАЗАТЬ ПРОЕКТ
Проект дома для семьи из 3-4 человек
Проект одноэтажного дома с гаражом для одного автомобиля. Запроектирован отдельно стоящий дом не самых больших размеров. Предполагается комфортное проживание семьи из 3-4 человек. Дом разделен на две условные зоны. Зона ежедневного быта и приема гостей и спальная зона хозяев. В первой зоне у нас расположилась гостиная комната с камином и выходом на частично закрытую террасу и кухня. Кухня состоит из обеденной, рабочей зоны и небольшой кладовой.Вторая зона вместила в себе три жилые комнаты и общую ванную комнату. Технические помещения, такие как гараж и котельная, вынесены в отдельную часть дома. Есть лаз на чердак и возможность организовать небольшой подвал под гаражом.
Дом классического стиля с шатровой многоскатной кровлей. Входная группа и небольшая терраса накрываются общей крышей.
Конструкция дома предусматривает следующие материалы и технологии:
- фундаменты: монолитный ленточный или свайно-ростверковый.
- стены: керамзитобетонный или газосиликатный блок сечением 400 мм
- перекрытия: сборные железобетонные плиты
- утепление фасадов и кровли: каменная вата
- кровельное покрытие: цементно песчаная черепица ЗАБУДОВА
- источник тепла: газовый котел








Это малоразмерные фундаментные блоки для ручного монтажа.
Производятся под Минском нашей компанией — БетонКон.
Всегда приятно, когда Заказчик остался довольными.
Может еще пару фотографий пришлете?
Выслали Вам на почту. Изучайте…
1. Можно купить у Вас проект, если я из России?
2. Возможен ли вариант проекта для фундамента на ЖБ сваях+ростверк? Перекрытия первого этажа плиты, стены блок гасосиликатный 400 мм + утеплитель 50-100 мм и холодный чердак (горизонтальное утепление)
3. Можно ли посмотреть линейные размеры помещений?
4. Высота стен от нулевого уровня?
1. Да, из РФ можно заказать проект — техническая документация будет отправлена Вам почтой.
2. Все можно, но под свайный фундамент нужно сделать геологию, или считать его по месту строительства.
3. Размеры выслали.
4. Высота потолков 2,9 м.
Немножко не так выразился… фундамент на забивных ЖБ сваях+ростверк. Подрядчик говорит, что для такого монтажа геология не нужна. В случае необходимости корректировок они их будут делать на месте. Либо в сторону увеличения кол-ва свай, либо в сторону уменьшения (что вряд ли).
В любом случае спасибо.
Хотелось бы увидеть линейные размеры.
Есть возможность сбрось на почту.
Спасибо.
Очень понравились ваши проекты домов, очень продуманные с точки зрения планировки.
Интересуюсь, строите ли дома в Московской области?
Линейные размеры сбросьте, пожалуйста.
Возможно незначительное изменение проекта???
Окна чуть изменить и гостинную увеличить за счет террасы??
Спасибо.
Желаете узнать размеры — приобретайте проект. Там и линейные размеры есть, и все высоты указаны.
Блоки заменить можно — даже не меняя проект. Данные блоки по размера одинаковы.
Балки тоже можно заменить, но опят подсказывает, что в этом проекте реализация перекрытия по балкам будет стоить дороже, чем по плитам.
Мы бы не рекомендовали вносить такие изменения. Однако, если настаиваете попросим доплатить 200 р.
Обращайтесь…
В проект указан вывод канализации из дома и ввод воды в дом.
Где у вас на участке будет скважина — мы не знаем.
Канализация, как правили, размещается в передней части участка.
В последнее время участились случаи срисовывания наших проектов. Поэтому линейные размеры можем выслать только если вы вышлите нам документы на ваш участок)
Да, вполне! Пришлите нам на почту ваши ФИО и копию свидетельства на участок — мы ответим линейными размерами.
Заинтересовал проект, вышлите пожалуйста линейные размеры.