Подобрать проект
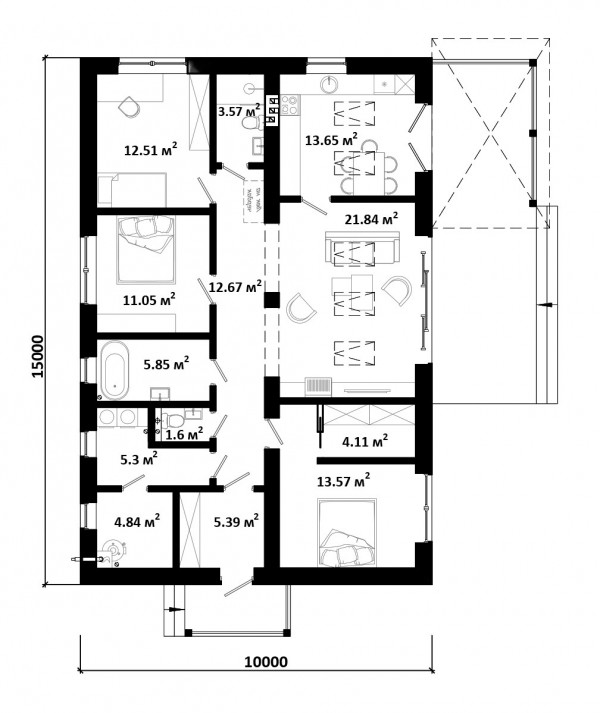
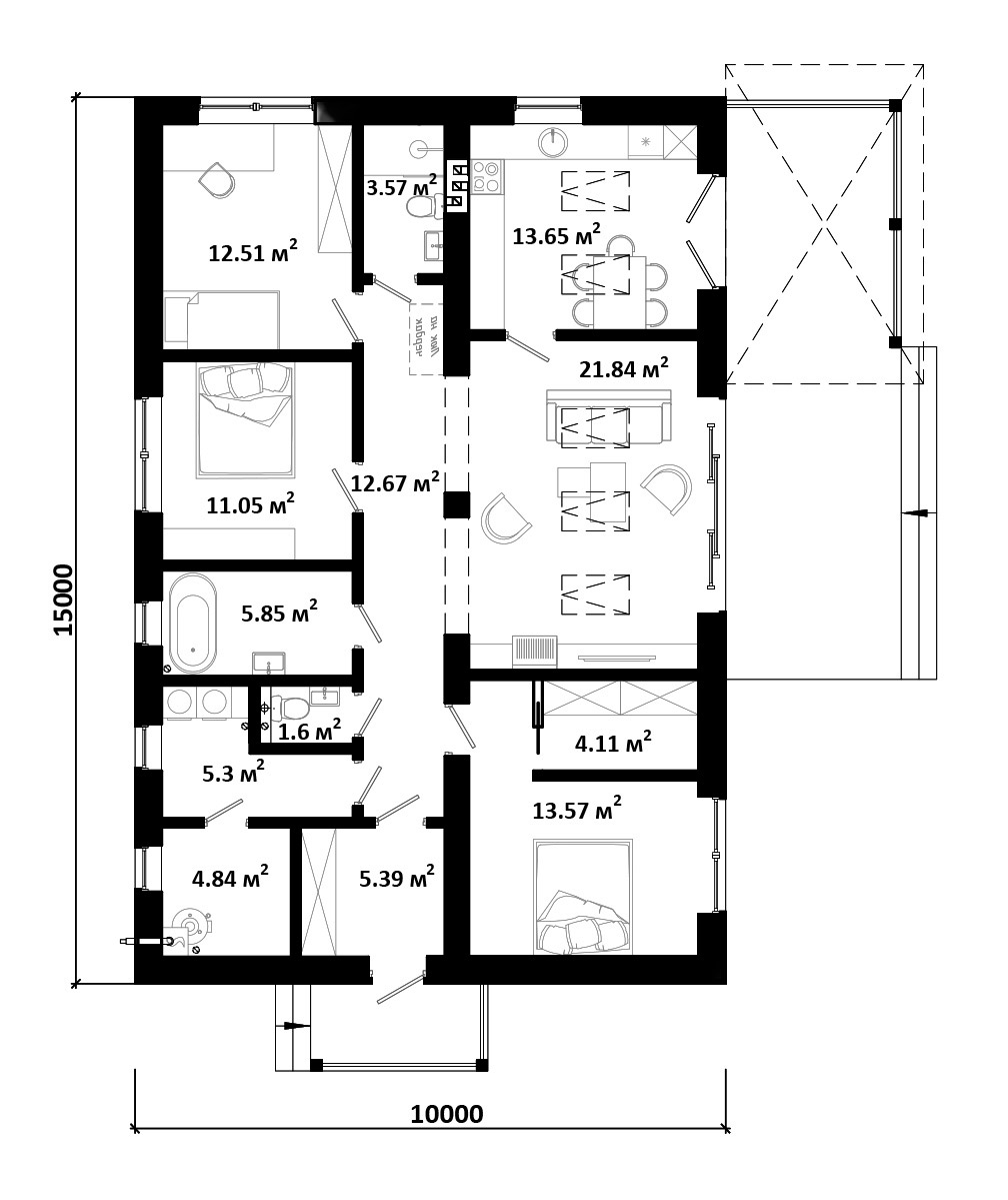
Проект одноэтажного дома с террасой ПРОСТОЙ
- Оригинальный |
- Зеркальный
Общая площадь: 116 м
Площадь первого этажа: 116 м
Площадь котельной: 4,84 м
Материал стен:
Материал перекрытий: Плиты перекрытия
Материал кровли: Гибкая кровля
Площадь кровли: 230 м Тип кровли: Двухскатная Угол кровли (град.): 15, 20 Высота в коньке: 6 м Тип отопления:
Площадь застройки: 183,6 м Размеры участка: 18 * 24 м Строительный объем: 664 м Срок подготовки проекта: 5 днейСтроительство: ~ 8 120 000 ₽
Материалы и работы по следующим этапам:
- подготовка участка (снятие плодородного грунта)
- устройство ленточного фундаментов (без коммуникаций)
- возведение стен и перегородок
- устройство перекрытий
- устройство монолитных поясов и перемычек
- монолитная лестница (для 2-х этажных)
- монтаж стропильной системы
- устройство кровли (ЗАБУДОВА, утепление 20 см)
------------------------------------------------
ВНИМАНИЕ! Данная стоимость является ориентировочной и не может расцениваться как коммерческое предложение.
Стоимость проекта:








Вообще — нет, но если закажете — будем делать)