Подобрать проект
Проект одноэтажного дома с гаражом NIKA
- Оригинальный |
- Зеркальный
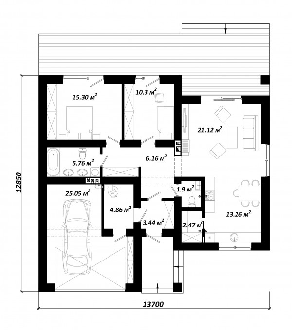
Общая площадь: 110 м
Площадь первого этажа: 86 м
Площадь котельной: 4.56 м
Площадь гаража: 24.4 м
Материал стен:
Материал перекрытий: Деревянные балки
Материал кровли:
Площадь кровли: 240 м
Тип кровли: Шатровая
Угол кровли (град.): 25
Высота в коньке: 6,35 м
Тип отопления:
Площадь застройки: 145 м
Размеры участка: 20,55m х 21,65 м
Строительный объем: 770 м
Срок подготовки проекта: 3-5 дней
Строительство: ~ 7 700 000 ₽
Материалы и работы по следующим этапам:
- подготовка участка (снятие плодородного грунта)
- устройство ленточного фундаментов (без коммуникаций)
- возведение стен и перегородок
- устройство перекрытий
- устройство монолитных поясов и перемычек
- монолитная лестница (для 2-х этажных)
- монтаж стропильной системы
- устройство кровли (ЗАБУДОВА, утепление 20 см)
------------------------------------------------
ВНИМАНИЕ! Данная стоимость является ориентировочной и не может расцениваться как коммерческое предложение.
Стоимость проекта:
80000 ₽
ЗАКАЗАТЬ ПРОЕКТ








Какой фундамент и тип отопления (батареи, теплые полы) заложены по проекту?
Высота потолков?
Спасибо.
Да, строительство из таких блоков — возможно. Хоть в проекте и заложен керамзитобетоннные блоки.
Фундамент по умолчанию — монолитный ленточный, но в зависимости от геологический изысканий можем адаптировать под любой другой тип: свайно-ростверковый, сборный или плитный.
Отопление в проекте предусматривает конвекторы в местах большого остекления и теплые полы в кухне и санузлах.
Высота потолков около 2,9 м, в зависимости от выбранного блока.
Погреб можно планировать по результатам геологии — если позволит грунт.
Газовый котел заменить на твердотопливный — возможно.
Обращайтесь)))
А возможно ли в данном проекте организовать второй свет в гостинной?
Скорее нет, чем да) Там много деревянных конструкций под скатами кровли, и убрать их будет проблематично.