Подобрать проект
Проект одноэтажного дома с крытой террасой DECYMA 3
- Оригинальный |
- Зеркальный
Общая площадь: 88 м
Площадь первого этажа: 88 м
Площадь котельной: 4.6 м
Материал стен:
Материал перекрытий: Железобетон
Материал кровли:
Площадь кровли: 220 м
Тип кровли: Шатровая
Угол кровли (град.): 30
Высота в коньке: 6.50 м
Тип отопления:
Площадь застройки: 140.00 м
Размеры участка: 18 х 23 м
Строительный объем: 590 м
Срок подготовки проекта: 1-2 дня
Строительство: ~ 6 160 000 ₽
Материалы и работы по следующим этапам:
- подготовка участка (снятие плодородного грунта)
- устройство ленточного фундаментов (без коммуникаций)
- возведение стен и перегородок
- устройство перекрытий
- устройство монолитных поясов и перемычек
- монолитная лестница (для 2-х этажных)
- монтаж стропильной системы
- устройство кровли (ЗАБУДОВА, утепление 20 см)
------------------------------------------------
ВНИМАНИЕ! Данная стоимость является ориентировочной и не может расцениваться как коммерческое предложение.
Стоимость проекта:
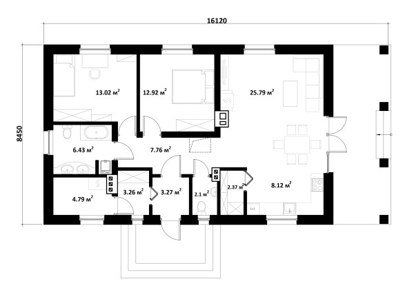
Это классический небольшой дом для проживания 2-3 человек. Может использоваться как дача. Форма дома прямоугольная – что позволяет снизить стоимость строительства.
В доме предусмотрены 2 жилые комнаты, большая гостиная с кухней и технические помещения. Отличительной особенностью этого проекта является терраса накрытая крышей, которая размещена на боковом фасаде здания.








И можно ли будет у Вас заказать проект этого дома решая вопросы в телефонном режиме? Т.к. проживаем в Добрушском районе.
Возможно, Вы имели ввиду блог UPC — газосиликатный? Да — можно его использовать не меняя конструкцию перекрытия.
И да, все вопросы можно решать по телефону.
Обращайтесь))