Подобрать проект
Проект одноэтажного дома с гаражом GRAF 2A
- Оригинальный |
- Зеркальный
Общая площадь: 134 м
Площадь первого этажа: 110 м
Площадь котельной: 4.4 м
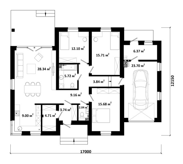
Площадь гаража: 24.1 м
Материал стен:
Материал перекрытий: Деревянные балки
Материал кровли:
Площадь кровли: 273 м
Тип кровли: Шатровая
Угол кровли (град.): 25/30
Высота в коньке: 6,36 м
Тип отопления:
Площадь застройки: 208.8 м
Размеры участка: 21.15 х 23 м
Строительный объем: 889.26 м
Срок подготовки проекта: 14 дней
Строительство: ~ 9 380 000 ₽
Материалы и работы по следующим этапам:
- подготовка участка (снятие плодородного грунта)
- устройство ленточного фундаментов (без коммуникаций)
- возведение стен и перегородок
- устройство перекрытий
- устройство монолитных поясов и перемычек
- монолитная лестница (для 2-х этажных)
- монтаж стропильной системы
- устройство кровли (ЗАБУДОВА, утепление 20 см)
------------------------------------------------
ВНИМАНИЕ! Данная стоимость является ориентировочной и не может расцениваться как коммерческое предложение.
Стоимость проекта:
Очередная модификация проекта GRAF
Проект одноэтажного дома с гаражом
Проект одноэтажного дома вместил в себя три жилые комнаты разной площади, гостиную совмещенную с кухней, а теперь еще и гараж для одного автомобиля.
Из гостиной есть выход на небольшую закрытую свесом кровли террасу, где можно приятно проводить время с семьей и друзьями.
Технология строительства одноэтажного дома:
- фундамент: свайно-ростверковый или монолитный ленточный
- стены дома: керамзитобетонный или газосиликатный блок 400 мм
- перекрытия: по деревянным балкам
- утепление фасадов: каменная вата 50 мм
- утепление кровли: каменная вата 200 мм
- кровля: Черепица, Металлочерепица, Мягкая кровля
- источник тепла: газовый котёл
Доступна версия проекта с подвалом и без гаража








Комментарии ()