Подобрать проект
Проект одноэтажного дома с гаражом в современном стиле ДОБРЫЙ 3
- Оригинальный |
- Зеркальный
Общая площадь: 165 м
Площадь первого этажа: 132 м
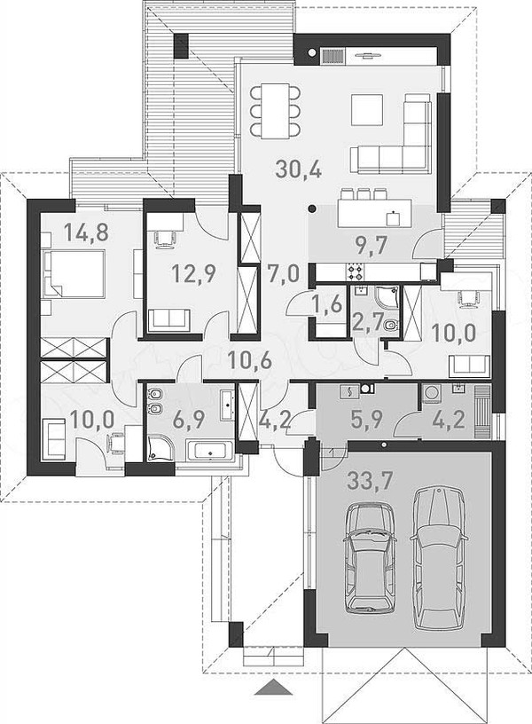
Площадь котельной: 5.9 м
Площадь гаража: 33.7 м
Материал стен:
Материал перекрытий: Монолит
Материал кровли:
Площадь кровли: 350 м
Тип кровли: Шатровая
Угол кровли (град.): 30
Высота в коньке: 6.6 м
Тип отопления:
Площадь застройки: 210 м
Размеры участка: 22,65 х 28,28 м
Строительный объем: 740 м
Срок подготовки проекта: 3-5 дней
Строительство: ~ 11 550 000 ₽
Материалы и работы по следующим этапам:
- подготовка участка (снятие плодородного грунта)
- устройство ленточного фундаментов (без коммуникаций)
- возведение стен и перегородок
- устройство перекрытий
- устройство монолитных поясов и перемычек
- монолитная лестница (для 2-х этажных)
- монтаж стропильной системы
- устройство кровли (ЗАБУДОВА, утепление 20 см)
------------------------------------------------
ВНИМАНИЕ! Данная стоимость является ориентировочной и не может расцениваться как коммерческое предложение.
Стоимость проекта:
80000 ₽
ЗАКАЗАТЬ ПРОЕКТ








Комментарии (4)