Подобрать проект
Проект двухквартирного мансардного дома без гаража MURENA
- Оригинальный |
- Зеркальный
Общая площадь: 213 м
Площадь первого этажа: 127 м
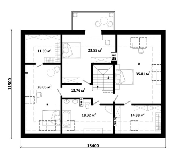
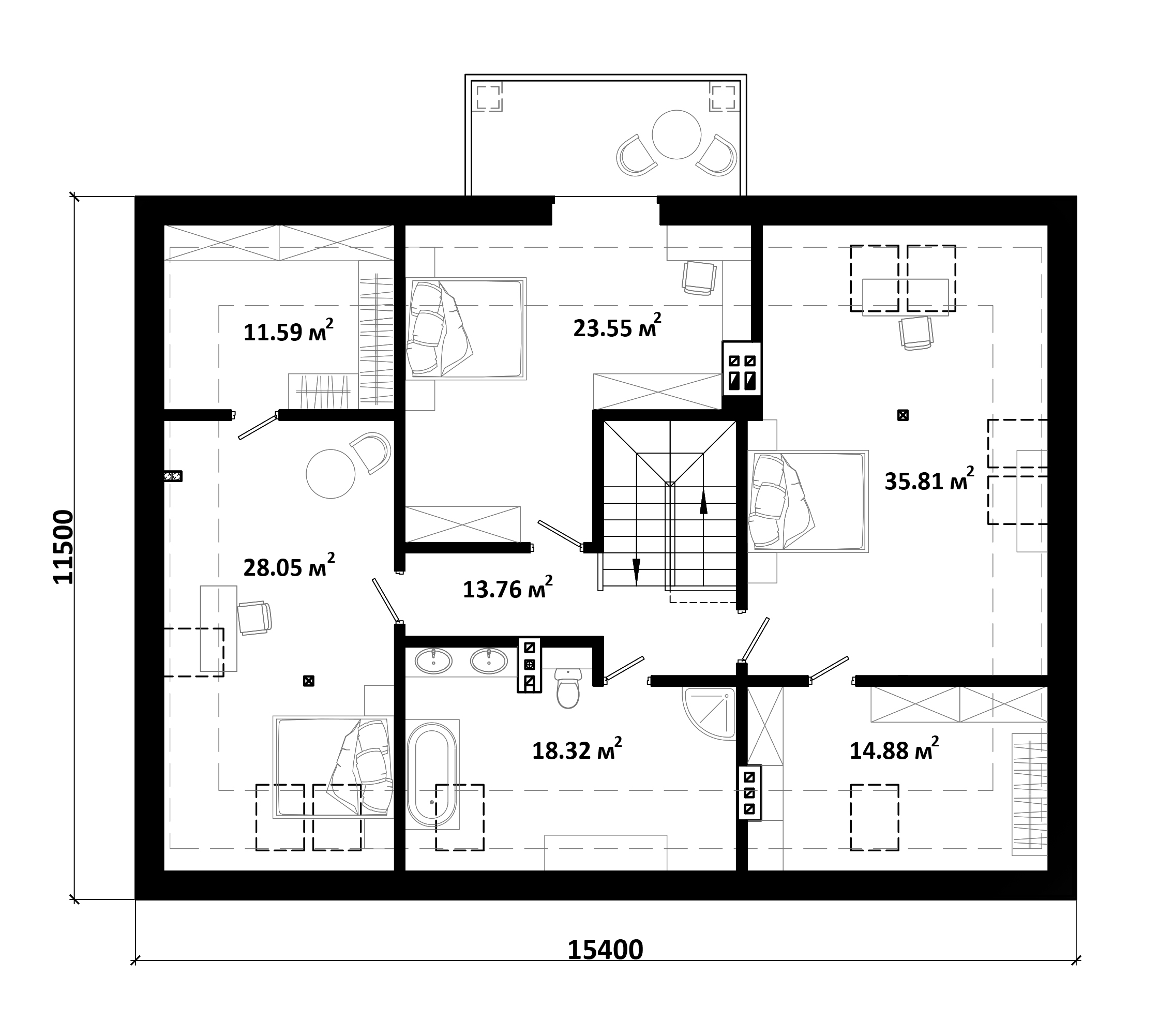
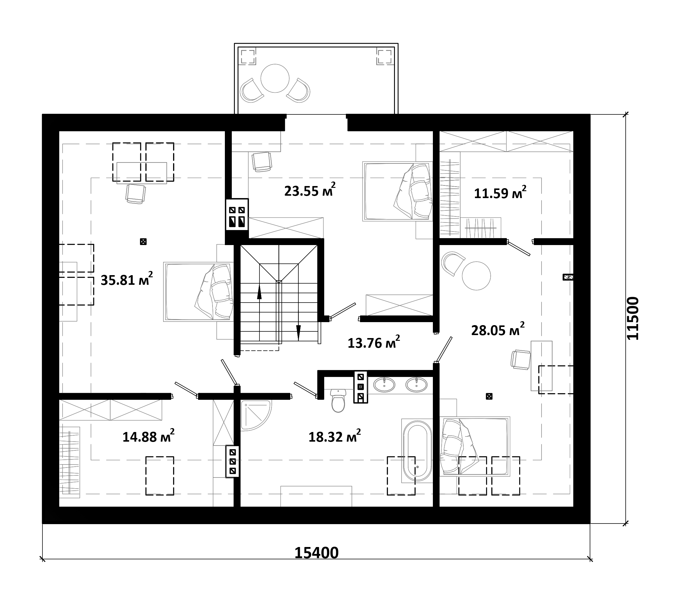
Площадь мансарды: 85,2 м
Площадь котельной: 8,6 м
Количество этажей: 2
Материал стен:
Материал перекрытий: Железобетон
Материал кровли:
Площадь кровли: 320 м
Тип кровли: Шатровая
Угол кровли (град.): 40 / 35
Высота в коньке: 8.75 м
Тип отопления:
Площадь застройки: 217.00 м
Размеры участка: 23,8 x 21,8 м
Строительный объем: 775 м
Срок подготовки проекта: 1-2 дня
Строительство: ~ 14 910 000 ₽
Материалы и работы по следующим этапам:
- подготовка участка (снятие плодородного грунта)
- устройство ленточного фундаментов (без коммуникаций)
- возведение стен и перегородок
- устройство перекрытий
- устройство монолитных поясов и перемычек
- монолитная лестница (для 2-х этажных)
- монтаж стропильной системы
- устройство кровли (ЗАБУДОВА, утепление 20 см)
------------------------------------------------
ВНИМАНИЕ! Данная стоимость является ориентировочной и не может расцениваться как коммерческое предложение.
Стоимость проекта:
80000 ₽
ЗАКАЗАТЬ ПРОЕКТ










Комментарии ()